隔音降噪_柴油發電機組噪聲處理工程技術規范(一)
在生活區,商務大樓等地方安裝備用柴油發電機組,還需要對柴油發電機組噪聲進行處理,以免影響周圍人們的生活。所以在鬧市等地區環境要求較高的地方要嚴格按照該地區環保法律法規即《城市區域環境噪聲標準》精心設計處理避免給自己帶來不必要的糾紛。廣西發電機廠家頂博電力先進的降噪消聲裝置對進、排風通道和排氣系統進行降噪處理,確保機組在滿足通風條件,不降低機組輸出功率的前提下,完全滿足國家標準對環境噪聲的要求。
柴油發電機組噪聲處理工程技術規范內容如下:
適用范圍
本標準規定了柴油發電機組噪聲處理工程的設計、施工、驗收以及運行管理的技術要求,可作為環境影響評價、可行性研究、設計施工、環境保護驗收及建成后運行與管理的技術依據。
規范性引用文件
(1)環境保護有關法律法規
(2)《聲環境質量標準》(GB33096-2008)
(3)《工業企業廠界環境噪音排放標準》(GB12348-2008)
總體設計
(1)發電機組噪聲應達到國家標準《城市區域環境噪聲標準》(GB 3097-93)中各區域類別相應的噪聲排放標準。
(2)應根據企業柴油發電機的位置、機房空間結構、發電機組功率和數量等實際情況確定柴油發電機噪聲處理工程的處理規模和處理工藝,做到保護環境、經濟合理、技術可靠。
(3) 處理工程技術方案的選擇應符合環境影響評價報告書批復文件的要求,柴油發電機組噪聲處理后應穩定達到有關國家和地方排放標準的規定。
柴油發電機組噪聲處理工藝技術要求
柴油發電機組噪聲主要包括發動機的排氣噪聲、進氣噪聲、燃燒噪聲、連桿及活塞、齒輪等運動件在工作時的往復高速運動和撞擊而產生的機械噪聲、冷卻水排風扇氣流噪聲。柴油發電機組的綜合噪聲很高,根據功率大小,一般高達100-125dB(A)
柴油發電機噪聲治理方法包括進風、排風、燃氣排氣通道的消聲處理、機房內的吸聲處理、機房的隔聲處理等。
柴油發電機(風冷式)噪聲治理平面示意圖
1-柴油機 2-自配排煙消聲器 3-冷卻風扇 4-柔性接頭 5-排風消聲器 6-排風百葉窗 7-隔聲門 8-進風百葉窗II 9-進風消音器 10-進風百葉窗I 11-吸音天花 12-吸音壁 13-煙塵凈化器 14-循環水箱 15-噴淋水泵 16-油箱。
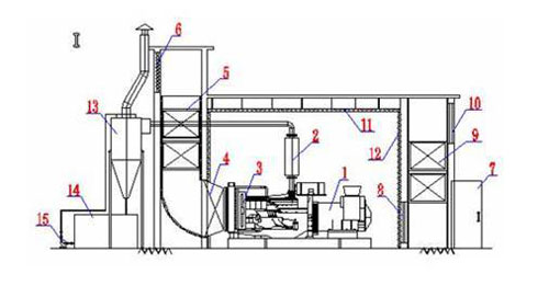
柴油發電機(風冷式)噪聲治理工藝立面圖
1-柴油機 2-自配排煙消聲器 3-冷卻風扇 4-柔性接頭 5-排風消聲器 6-排風百葉窗 7-隔聲門 8-進風百葉窗II 9-進風消音器 10-進風百葉窗I 11-吸音天花 12-吸音壁 13-煙塵凈化器 14-循環水箱 15-噴淋水泵。
以上信息來由廣西發電機組廠家頂博電力收集整理,頂博電力十多年老品牌企業,供應的柴油發電機組功率范圍為功率為20kw-2000kw,擁有電氣、降噪靜音、環保等各方面的專業技術人員,可根據客戶需要提供自啟動、并機及微機監控等配套設備,可提供靜音及移動拖車柴油發電機組。從機房設計、安裝調試、降噪工程、機組維修保養、配件供應等成套服務,滿足了用戶的電力需求,熱線:13667715899

推薦文章
- 為生命保駕護航:頂博智能發電機組,醫院備用電源系統的優選解決方案 2025-10-18
- 醫院斷電危機?就選頂博智能發電機組,10秒守護生命安全! 2025-10-18
- 智能發電機組在小區物業的應用:停電零延遲切換保安全 2025-10-17
- 邁向“主動智能”:頂博智能發電機組,“一屏掌控”全局,重新定義工地備用電源新標準 2025-10-16
- 工地備用電源新選擇——頂博智能發電機組, 工地的電力心臟,讓施工更省心 2025-10-16
- 頂博智能發電機組——智能掌控,手機App實時監控,秒級響應! 2025-10-15
- 戶外作業、演出必備:如何選擇一臺可靠的應急電源——柴油發電機組? 2025-10-14
- 發電機也上云?頂博這款發電機組可實現遠程三遙,手機App遠程操控 2025-10-13
- 醫院銀行都在用!頂博自動化發電機組已為全球上千個關鍵場所提供可靠的電源保障! 2025-10-11
- 柴油發電機組也智能?頂博發電機組可手機App遠程監控運行狀態! 2025-10-10