500KW康明斯發電機KTAA19-G6A散熱器技術參數
2019-11-15
來源: 頂博電力
104836
柴油發電機組散熱器是發電機組配備中不可缺少的重要部件之一,承當給柴油發電機組作業負載時產生的熱量熱量散入大氣以降低冷卻水的溫度,散熱器必須有足夠的散熱面積,并用導熱性好的材料制造。維護好發電機組散熱器也是一項不可忽視的重要工作。
廣西頂博電力設備制造有限公司生產的康明斯發電機組均采用重慶康明斯發動機有限公司的柴油機配套全銅無刷發電機配套而成的發電機組。我公司的柴油發電機組功率30-3000KW,有玉柴、上柴、濰柴、康明斯、沃爾沃品牌眾多,可針對不同不同需求、不同工況進行設計制造柴油發電機組,以充分滿足客戶多樣化的電力需求。以下為頂博電.力的康明發電機組KTAA19-G6散熱器出廠檢驗報告。
康明發電機組KTAA19-G6散熱器出廠檢驗報告
柴油機生產廠家:重慶康明斯發動機有限公司
配機型號:KTAA19-G6/KTAA19-G6A(40℃、50HZ)
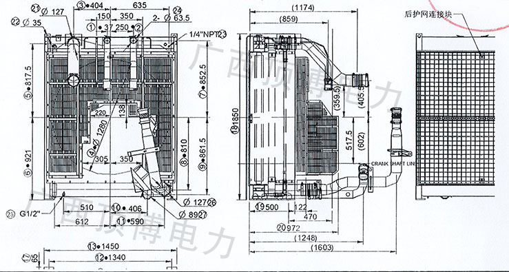
500KW康明斯發電機組KTAA19-G6散熱器構造圖
500KW康明斯發電機組KTAA19-G6散熱器外觀質量
檢驗項目 | 檢驗要求 | 檢驗結果符合要求 (OK) | 結果判斷 (Y/N) |
散熱芯子外觀 | 1.散熱片片距均勻,不允許兩片壓合在一起,無倒伏破裂 | OK | Y |
2.散熱管無彎曲變形和損傷 | OK | Y | |
3.散熱片片距均勻,不允許兩片壓合在一起。 | OK | Y | |
芯子油漆和表面涂層 | 1.總成按圖紙及客戶要求涂漆。 2.芯子油漆均勻,無脫落和起皮 3、散熱器表面涂層無明顯劃傷、脫落和銹蝕 | OK | Y |
散熱器表面 | 1.散熱器外表面應干凈整潔,無灰塵和污跡。 2.散熱器內腔無流動的固體雜質, 3.散熱器的進出口有防塵蓋 4、焊縫無凹凸不平和焊料堆積,周邊無焊渣飛濺 | OK | Y |
5、散熱器外表防腐層應均勻美觀、不允許有凹凸不平、起泡、桔皮紋及涂層脫落等缺陷。(頂博電力) | OK | Y | |
附件安裝 | 1、水箱蓋與加水口座裝配自如無變形,開啟壓力符合圖紙要求 | OK | Y |
2、蒸汽導出管長度及材質符合圖紙要求,外觀完好無破損 | OK | Y | |
3、補水管膠管卡箍等安裝位置正確,緊固情況目測良好 | OK | Y | |
螺栓緊固情況 | 1.傳動件緊固件扭力符合扭力工藝表 2.連接用緊固件緊固完成 | OK | Y |
康明發電機組KTAA19-G6散熱器標志及包裝 | |||
產品銘牌 | 具體內容及粘貼位置符合產品圖樣要求。 | OK | Y |
配管及隨機零配件 | 按裝箱清單清點,實物齊全,與裝箱清單相符合 | OK | Y |
隨機文件: | 裝箱清單、 產品合格證、使用說明書等隨機文件規范齊全 | OK | Y |
包裝箱要求 | 包裝箱尺寸及結構按包裝規范執行, 標識內容及要求按產品圖樣要求。 | OK | Y |
http://www.tjxygj.com

推薦文章
- 為生命保駕護航:頂博智能發電機組,醫院備用電源系統的優選解決方案 2025-10-18
- 醫院斷電危機?就選頂博智能發電機組,10秒守護生命安全! 2025-10-18
- 智能發電機組在小區物業的應用:停電零延遲切換保安全 2025-10-17
- 邁向“主動智能”:頂博智能發電機組,“一屏掌控”全局,重新定義工地備用電源新標準 2025-10-16
- 工地備用電源新選擇——頂博智能發電機組, 工地的電力心臟,讓施工更省心 2025-10-16
- 頂博智能發電機組——智能掌控,手機App實時監控,秒級響應! 2025-10-15
- 戶外作業、演出必備:如何選擇一臺可靠的應急電源——柴油發電機組? 2025-10-14
- 發電機也上云?頂博這款發電機組可實現遠程三遙,手機App遠程操控 2025-10-13
- 醫院銀行都在用!頂博自動化發電機組已為全球上千個關鍵場所提供可靠的電源保障! 2025-10-11
- 柴油發電機組也智能?頂博發電機組可手機App遠程監控運行狀態! 2025-10-10